
Las Terrazas de Valdepozuelo es un conjunto residencial único formado por tres hileras de viviendas en altura cuyo diseño contempla todos los detalles para lograr una perfecta integración y equilibrio con el entorno natural donde se emplazan.
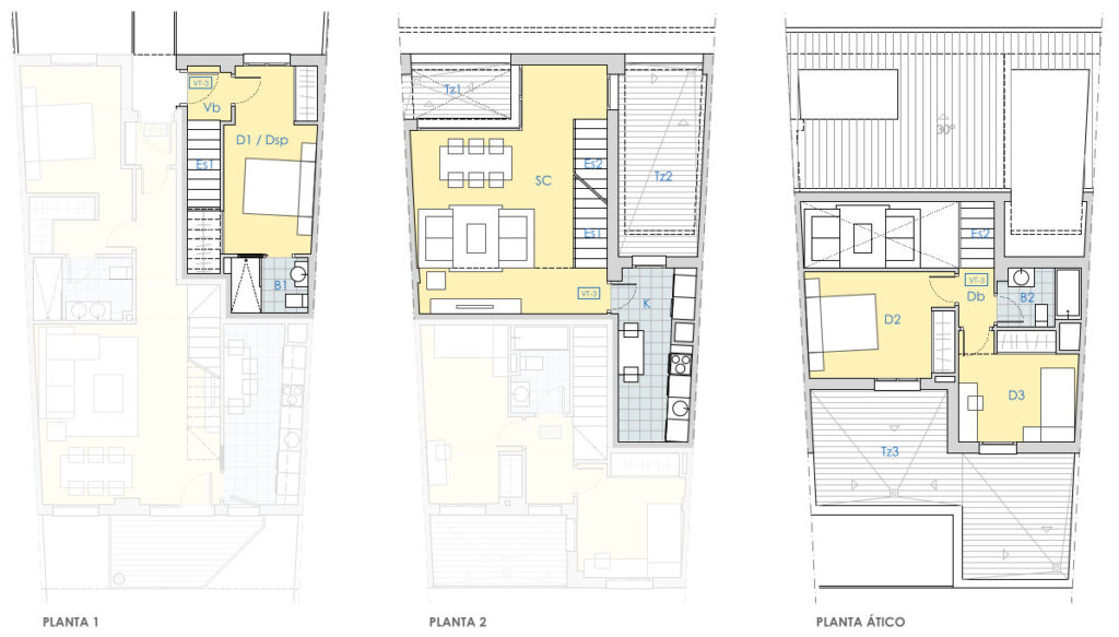
En el nuevo residencial encontraras 78 viviendas VPPB de tres dormitorios con una distribución práctica, que conecta espacios, creando zonas abiertas y llenas de luz natural mediante amplias terrazas y doble orientación permitiendo, además de vistas, el soleamiento y la ventilación natural.
Todas las viviendas cuentan con modernas instalaciones, pensadas para el ahorro energético y sostenibilidad, con alta certificación energética, para que solo tengas en mente disfrutar de la calidez de tu hogar.
Su arquitectura, milimétricamente diseñada, apuesta por viviendas modernas, abiertas y funcionales con grandes terrazas y amplios ventanales que proporcionaran una gran luminosidad y confort a los espacios interiores.
En tu casa disfrutaras de todas las ventajas de vivir en un unifamiliar, pero sin renunciar a la tranquilidad, ahorro y comodidad que tiene un edificio en altura. Para ello, te ofrecemos tres tipologías distintas de vivienda: bajos, dúplex, y áticos triplex en donde podrás disfrutar de terrazas privadas, tranquilas y muy soleadas, un auténtico lujo para ti y los tuyos.
Y para hacerte la vida aún más fácil, cada una de las viviendas dispone de dos plazas de garaje y trastero.


![viviendas1-vertical1 ProEXR File Description
=Attributes=
cameraAperture (float): 35
cameraFNumber (float): 8
cameraFarClip (float): 1e+030
cameraFarRange (float): 1000
cameraFocalLength (float): 24
cameraFov (float): 72.1932
cameraNearClip (float): 0
cameraNearRange (float): 0
cameraProjection (int): 0
cameraTargetDistance (float): 39531.1
cameraTransform (m44f): [{0.935844, 0.343315, -0.079568, 2583.39}, {0.352415, -0.911679, 0.211294, 2048.31}, {-0, -0.22578, -0.974178, 484.264}, {0, 0, 0, 1}]
channels (chlist)
compression (compression): Zip
dataWindow (box2i): [0, 0, 3499, 2332]
displayWindow (box2i): [0, 0, 3499, 2332]
lineOrder (lineOrder): Increasing Y
name (string): ""
pixelAspectRatio (float): 1
screenWindowCenter (v2f): [0, 0]
screenWindowWidth (float): 1
type (string): "scanlineimage"
vrayChannelInfo (string): "{"worldPositions":{"alias":143,"index":7,"flags":24676},"refractionFilter":{"alias":120,"index":11,"flags":24612},"worldNormals":{"alias":145,"index":8,"flags":16420},"noiseLevel":{"alias":142,"index":5,"flags":16420},"effectsResult":{"alias":153,"index":13,"flags":16517},"Alpha":{"alias":125,"index":1,"flags":16389},"VRayWireColor":{"alias":127,"index":3,"flags":16404},"VRayExtraTex_Map #2138795886":{"alias":1000,"index":4,"flags":16404},"RGB color":{"alias":126,"index":0,"flags":16385},"diffuseFilter":{"alias":101,"index":9,"flags":24612},"defocusAmount":{"alias":146,"index":6,"flags":16420},"VRaySpecular":{"alias":106,"index":2,"flags":16392},"reflectionFilter":{"alias":118,"index":10,"flags":24612},"Glare":{"alias":1000,"index":12,"flags":24580}}"
=Channels=
A (half)
B (half)
G (half)
Glare.B (half)
Glare.G (half)
Glare.R (half)
R (half)
VRayExtraTex_Map #2138795886.B (half)
VRayExtraTex_Map #2138795886.G (half)
VRayExtraTex_Map #2138795886.R (half)
VRaySpecular.B (half)
VRaySpecular.G (half)
VRaySpecular.R (half)
VRayWireColor.B (half)
VRayWireColor.G (half)
VRayWireColor.R (half)
defocusAmount (half)
diffuseFilter.B (half)
diffuseFilter.G (half)
diffuseFilter.R](https://tucasaenloeches.es/wp-content/uploads/2022/11/viviendas1-vertical1-422x600.jpg)












